【中古住宅】さいたま市西区指扇

4,380万円

埼玉県さいたま市西区大字指扇

川越線「西大宮」駅徒歩11分

川越線「指扇」駅徒歩25分

埼玉新都市交通ニューシャトル「鉄道博物館(大成)」駅徒歩43分

価格
4,380万円
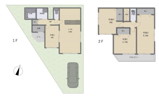
間取り/建物面積
4LDK/93.00㎡
所在地
埼玉県さいたま市西区大字指扇
築年
2019年7月(築6年)
駐車
有(1台)
交通

川越線西大宮」駅 徒歩11分

川越線指扇」駅 徒歩25分

埼玉新都市交通ニューシャトル鉄道博物館(大成)」駅 徒歩43分

【中古住宅】さいたま市西区指扇の基本情報

物件名
【中古住宅】さいたま市西区指扇
価格
4,380万円
建物面積
93.00㎡
土地面積
30.84坪(101.96㎡)
築年月
2019年7月(築6年)
総戸数
-
所在地
埼玉県さいたま市西区大字指扇
交通

川越線西大宮」駅 徒歩11分

川越線指扇」駅 徒歩25分

埼玉新都市交通ニューシャトル鉄道博物館(大成)」駅 徒歩43分

【中古住宅】さいたま市西区指扇の詳細情報

設備条件
設備(その他)
    -
駐車場/月額
有(1台)/0円
土地権利
所有権
国土法届出
不要
用途地域
第一種中高層住居専用
取引態様
専任媒介
引渡し
相談

【中古住宅】さいたま市西区指扇で募集中の物件

  1. 28.13坪 (93.00㎡)

    4,380万円(155.71万円/坪)

周辺施設

  • ローソン さいたまシティハイツ三橋店の画像

    コンビニエンスストア

    ローソン さいたまシティハイツ三橋店

    180m(3分)

  • ドラッグストア セキ 指扇店の画像

    ドラッグストア

    ドラッグストア セキ 指扇店

    669m(9分)

  • ドラッグセイムス 大宮西店の画像

    ドラッグストア

    ドラッグセイムス 大宮西店

    821m(11分)

  • マルエツ 西大宮駅前店の画像

    スーパー

    マルエツ 西大宮駅前店

    883m(12分)

  • セブンイレブン 大宮三橋店の画像

    コンビニエンスストア

    セブンイレブン 大宮三橋店

    967m(13分)

  • コープみらい コープ指扇店の画像

    スーパー

    コープみらい コープ指扇店

    1068m(14分)

  • さいたま市立指扇小学校の画像

    小学校

    さいたま市立指扇小学校

    1243m(16分)

  • ニトリ 大宮バイパス店の画像

    インテリア

    ニトリ 大宮バイパス店

    1315m(17分)

  • さいたま市立指扇中学校の画像

    中学校

    さいたま市立指扇中学校

    1618m(21分)

  • ヤマダデンキ テックランド大宮宮前本店の画像

    家電製品

    ヤマダデンキ テックランド大宮宮前本店

    1693m(22分)

近隣の物件

  1. さいたま市西区大字指扇

    3LDK (102.71㎡)

    3,799万円

  2. さいたま市西区三橋6丁目

    4LDK (101.85㎡)

    3,499万円

よく見られている物件

  1. 熊谷市石原

    3LDK (80.29㎡)

    2,590万円

  2. 熊谷市肥塚

    4LDK (106.81㎡)

    1,780万円

  3. 羽生市中央5丁目

    4LDK (95.33㎡)

    2,999万円

  4. 深谷市上柴町東7丁目

    3LDK (110.96㎡)

    2,780万円

【中古住宅】さいたま市西区指扇

お気軽にお問い合わせください

無料お問い合わせ

株式会社アップルホーム

0120-466-263

10:00〜19:00

(休:水曜日)